
Casa Isola
2023
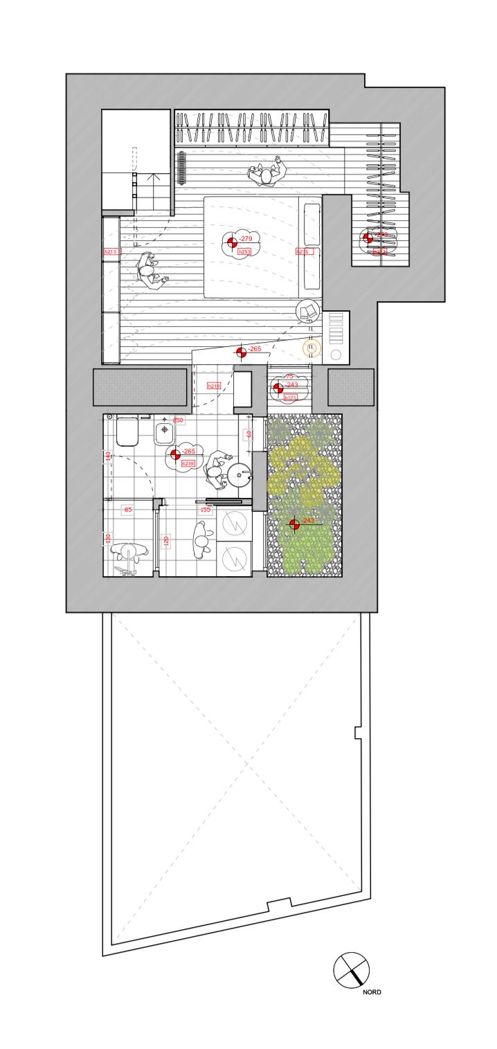
Nel cuore pulsante della Milano creativa ed alternativa, a ridosso di Garibaldi, si trova questo immobile dell'inizio del '900. L'appartamento oggetto di restyling completo è un piccolo gioiello al piano terra, con soppalco, cortile di pertinenza e una cantina con volta a botte in mattoni direttamente collegata. L'intervento in fase di realizzazione prevede:
- lo sbiancamento di parte del giardino per dare aria e luce al piano interrato creando un ambiente vivibile a tutti gli effetti, mettendone in risalto le sue caratteristiche architettoniche, e prevenendo eventuali problematiche dovute alla risalita dell'umidità e dell'acqua;
- la riqualificazione interna del piano terra;
- interventi strutturali su muratura portante al fine di portare luminosità negli ambienti;
- rifacimento piano terra con nuova distribuzione degli spazi;
- creazione di una pergola bioclimatica esterna per godersi l'esterno e per poter pranzare all'aria aperta;
- riqualificazione del giardino per un ambiente intimo e verde.
.jpeg)
.jpeg)
Contattaci
Compila il form per ricevere maggiori informazioni
Ti ricontatteremo il prima possibile


