
Cozy Design Flat
2017
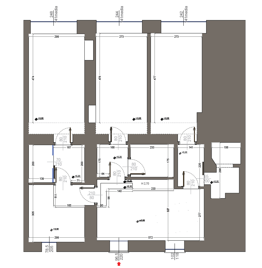
Al primo piano di uno storico edificio in Corso Buenos Aires a Milano abbiamo cercato di dare vita a un piccolo sogno nel cassetto. Noi stessi eravamo i committenti di questo progetto che voleva diventare una Foresteria Lombarda di lusso con tre stanze e un ambiente comune che permettesse ai clienti di godersi Milano e suoi scorci. L’uso di colori, di materiali e di spazi relax voleva contraddistinguere ogni stanza e garantire ai clienti una privacy e un’intimità unica.




Contattaci
Compila il form per ricevere maggiori informazioni
Ti ricontatteremo il prima possibile
.jpg)

.jpeg)